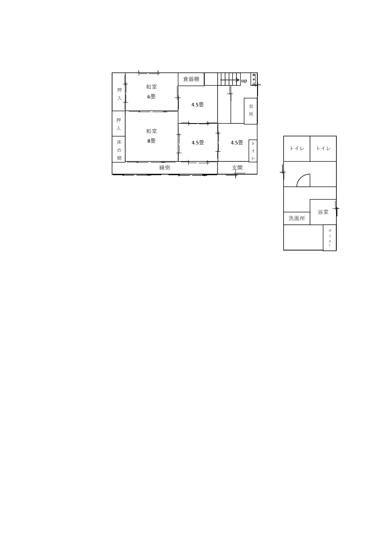
いきしまぐらし > 空き家情報 > 郷ノ浦町 > 83. ゆとりのある和の空間に日差しが差し込むお家 空き家一覧へ戻る 空き地を探す 83. ゆとりのある和の空間に日差しが差し込むお家 物件について問い合わせる 【所在地】 壱岐市郷ノ浦町本村触 【区 分】 賃貸 【価 格】 40,000円/月 ※敷金:家賃1か月分 【物件情報】 ◎面積 / 床面積:59.5㎡ , 敷地面積:343.8 ㎡ ◎築年数 / 空き家となった時期:令和7年 ◎構造 / 木造瓦茸2階建 ◎補修 / 即使用可(補修する場合は借主負担) 【設備状況】 ◎キッチン / プロパンガス ◎水道 / 上水道 ◎風呂 / あり ◎トイレ / 洋式(合併浄化槽) ◎空調 / なし ◎駐車場 / あり(3台分) 【その他】 ※本物件は壱岐市空き家バンク活用促進事業補助金を活用されているため移住者の方のみ入居可能。 ※室内でのペット飼育OK(家具等を破損した場合の費用は借主負担) 【周辺施設情報】 ◎壱岐市役所郷ノ浦庁舎:0.9km ◎ローソン壱岐郷ノ浦店:2.1 km ◎イオン壱岐店:12.4km ◎エレナ壱岐郷ノ浦店:2.1 km ◎ドラッグストアモリ郷ノ浦店:2.4 km ◎武生水保育所:1.0km ◎郷ノ浦幼稚園:1.1km ◎盈科小学校:1.2 km ◎郷ノ浦中学校:1.2 km ◎壱岐高等学校:1.4km ◎壱岐商業高校:12.3km 【こんな人におすすめ!】 ◎壱岐の中心部に近く、広々とした和の空間で暮らしたい方におすすめ! 【間取図】 【MAP】 一覧に戻る物件について問い合わせる HOME 個人情報保護方針 サイトマップ 壱岐ってどんな島? 壱岐移住へのステップ 住まいを探す 仕事を探す 子育てを楽しむ 健やかに暮らす 離島留学 移住者の体験談 島の魅力を活かし、農業で・・・ 心酔する一本を作りたい。 故郷に建てた、繋がり広が・・・ 小規模ならではの畜産業 壱岐の名産・ウニがおいし・・・ 夢のパン屋を壱岐でオープ・・・ ゲストハウスで壱岐の魅力・・・ 壱岐の高齢者を生涯現役に もしこの島で暮らすなら Dream Voice.01 Dream Voice.02 Dream Voice.03 Dream Voice.04 よくある質問 お問い合わせ Facebook 電話をかける 〒811-5192長崎県壱岐市郷ノ浦町本村触562番地TEL:0920-48-1134 FAX:0920-47-4360
83. ゆとりのある和の空間に日差しが差し込むお家 物件について問い合わせる 【所在地】 壱岐市郷ノ浦町本村触 【区 分】 賃貸 【価 格】 40,000円/月 ※敷金:家賃1か月分 【物件情報】 ◎面積 / 床面積:59.5㎡ , 敷地面積:343.8 ㎡ ◎築年数 / 空き家となった時期:令和7年 ◎構造 / 木造瓦茸2階建 ◎補修 / 即使用可(補修する場合は借主負担) 【設備状況】 ◎キッチン / プロパンガス ◎水道 / 上水道 ◎風呂 / あり ◎トイレ / 洋式(合併浄化槽) ◎空調 / なし ◎駐車場 / あり(3台分) 【その他】 ※本物件は壱岐市空き家バンク活用促進事業補助金を活用されているため移住者の方のみ入居可能。 ※室内でのペット飼育OK(家具等を破損した場合の費用は借主負担) 【周辺施設情報】 ◎壱岐市役所郷ノ浦庁舎:0.9km ◎ローソン壱岐郷ノ浦店:2.1 km ◎イオン壱岐店:12.4km ◎エレナ壱岐郷ノ浦店:2.1 km ◎ドラッグストアモリ郷ノ浦店:2.4 km ◎武生水保育所:1.0km ◎郷ノ浦幼稚園:1.1km ◎盈科小学校:1.2 km ◎郷ノ浦中学校:1.2 km ◎壱岐高等学校:1.4km ◎壱岐商業高校:12.3km 【こんな人におすすめ!】 ◎壱岐の中心部に近く、広々とした和の空間で暮らしたい方におすすめ! 【間取図】 【MAP】 一覧に戻る物件について問い合わせる